Projekte
Urbanistik Städtebau
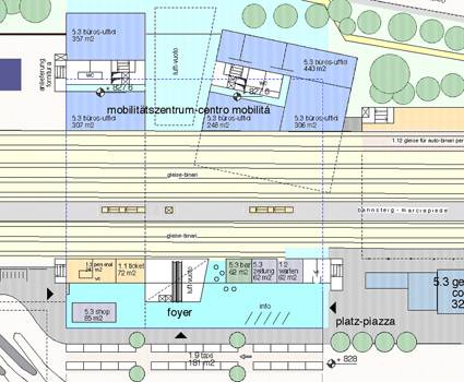
Mobilitätszentrum Bruneck
Mobilitätszentrum Bruneck
Jahr: 2000
Bauherr: Gemeinde Bruneck
Wettbewerb
Das Brunecker Bahnhofsareal wird unter folgenden wesentlichen Gesichtspunkten neugegliedert :
- Schaffung einer neuen, markanten Bahnhofs- und Mobilitätstruktur, die zugleich die fußläufige Verbindung zur Stegener Seite gewährleistet
- Zentrale Anordnung der öffentlichen Gebäude und Plätze zwecks guter Orientierung
- Einfügung des Mobilitätszentrums in das vorhandene Terrain mit Ausnutzung des natürlichen Niveaugefälles zwischen Gleisgelände und Stegener Ufer
- Aufwertung der "Stegener Seite" durch Nutzungen des tertiären Sektors
- Einbindung in das städtebauliche Umfeld unter Bewahrung und Umnutzung der vorhandenen historischen Strukturen (z.B. Alter Bahnhof und Nebengebäude) - Verdichtung des Areals "Europastraße" durch Wohnbebauung.

